На сайт СНАУ
Українська
English
Toggle navigation
Про факультет
Історія факультету
Деканат
Кафедри
Навчально-наукові лабораторії
Матеріально-технічна база
Випускнику
Контакти
Спеціальності
Архітектура та містобудування
Будівництво та цивільна інженерія
Транспортні технології
Відновлювані джерела енергії
Навчання
ОПП ОС «Бакалавр»
ОПП ОС «Магістр»
ВИБІРКОВІ ДИСЦИПЛІНИ
Дипломне проектування
Практична підготовка
Шкала оцінювання знань
Заочне навчання
Графік консультацій викладачів
Графіки державних іспитів
Графіки навчального процесу
Вступнику
Студенту
Академічна доброчесність — це важливо
ПУТІВНИК ПЕРШОКУРСНИКА
СКРИНЬКА ДОВІРИ
Студентське самоврядування
Психологічна служба
SOFT SKILLS FOR STUDENTS
РЕЙТИНГ УСПІШНОСТІ
ПРАЦЕВЛАШТУВАННЯ
Спортивні секції
Академічна мобільність
Робота факультету
Наукова робота
Методична робота
Співпраця
Аспірантура
Головна
›
Кафедри
›
Кафедра Архітектури та інженерних вишукувань
›
Проєктні розробки викладачів та здобувачів освіти кафедри
›
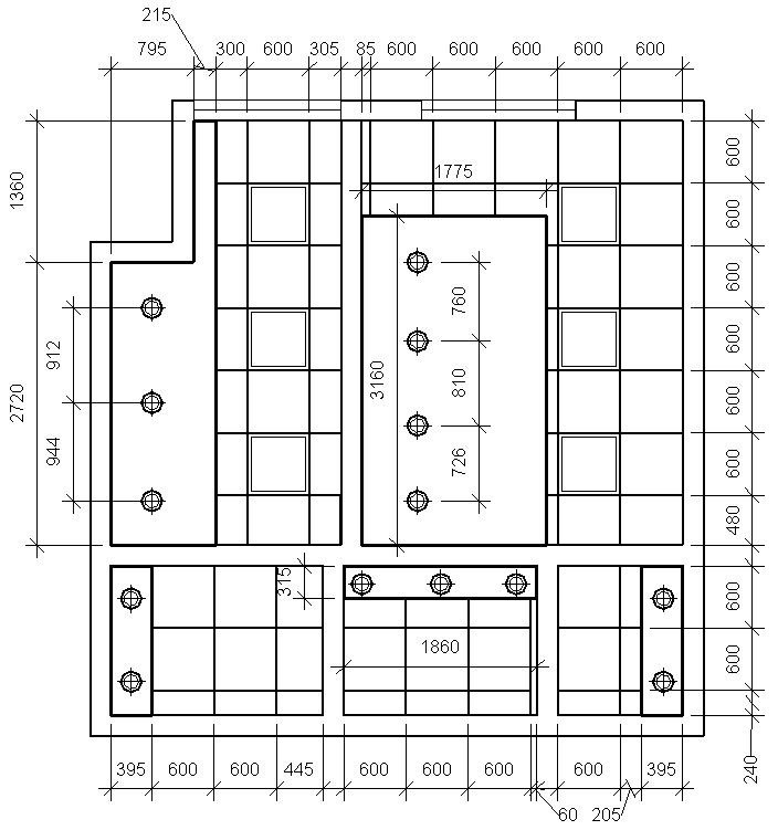
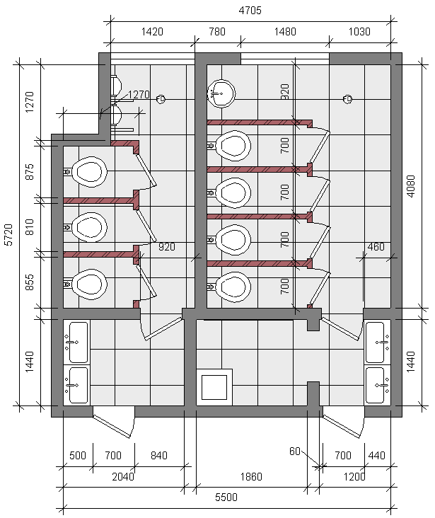
Дизайн концепція санітарних вузлів СНАУ
Дизайн концепція санітарних вузлів СНАУ
Автори дизайн концепції, розробники: Олександр ДЕНИСЕНКО, Дмитро БОРОДАЙ